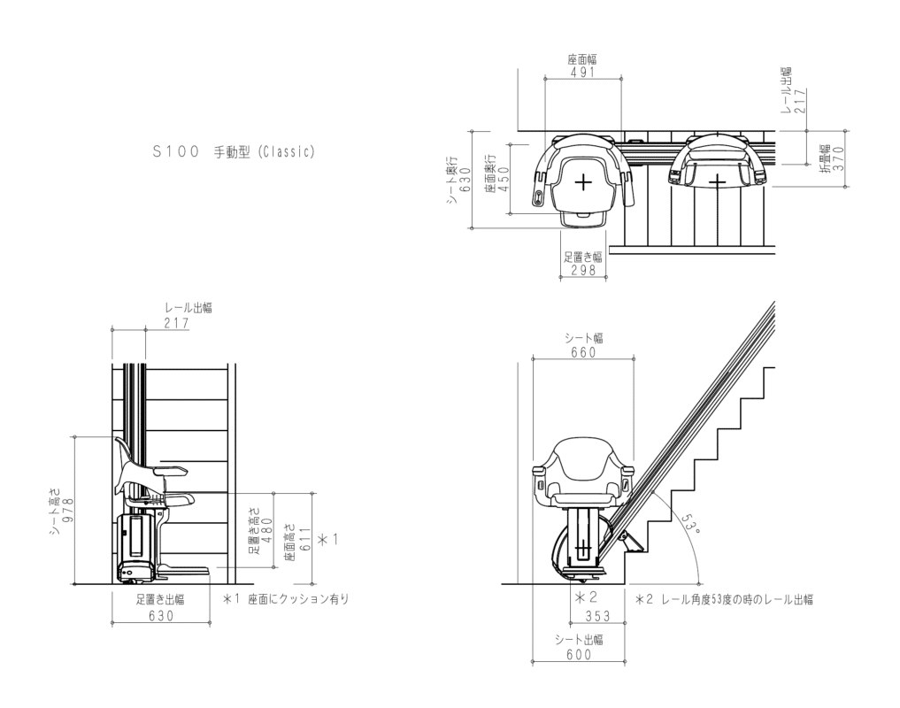
| 積載荷重 | 1名 90kg (大臣認定登録) |
|---|---|
| 操作 | ジョイスティック操作(有線式) 押し続け操作 |
| ドライブシステム | 充電式バッテリー (24V) 駆動、 ラック&ピニオン方式 |
| 対応傾斜角度 | 28~53度 |
| レール | アルミニウム |
| 速度 | 最大7.2以下/分 |
| 標準仕様 | 赤外線リモコン2個、 障害物センサー 安全ベルト、 折畳式チェア及びフットレスト上階での手動旋回機能 |
製品案内
家庭用いす式階段昇降機
| タイプ | 屋内直線階段用 |
|---|---|
| 購入価格 | お問い合わせください |
| レンタル | 月額 13,000円(税込 14,300円) |
| 納期 | 1ヶ月程度 |
| 工期 | 半日〜1日程度 |
| 特徴 | 座面が広く、大柄な方でもゆったり座れる設計です。上階に到着した際、座面下のレバーを使ってご自身(または介助者)で「手動」でいすを旋回させ、安全な姿勢で乗り降りをします。構造がシンプルな分、自動型に比べて費用を抑えやすいのがメリットです。 |
直線階段用
座面手動回転
バッテリー駆動
家庭用いす式階段昇降機
| タイプ | 屋内直線階段用 |
|---|---|
| 購入価格 | お問い合わせください |
| レンタル | 月額 16,000円(税込 17,600円) |
| 納期 | 1ヶ月程度 |
| 工期 | 半日〜1日程度 |
| 特徴 | 目的地に到着すると、いすが「自動」で乗り降りしやすい方向へ旋回します。また、座面を開閉すると足置き(フットレスト)も連動して自動で動くため、かがみ込む必要がありません。ご自身での操作が不安な方や、足腰への負担を極力減らしたい方に最適です。 |
直線階段用
座面自動回転
バッテリー駆動
安全のためキーを外しておけば、ステアリフトが動き始めることはありません。子供などが謝って作動させることがなく安全を保ちます。
座面を開けると、フットレストも連携して開閉するため、立ったままでも簡単に操作できます。電動開閉のため、座面の上げ下げも軽量になり、乗り降りの負担を軽減します。
ひじ掛けに設置されたジョイスティックを進行方向に軽く押すだけででスムーズに発進・停止ができます。(屋外タイプは防水)
自分が乗らない時でも、離れた場所から昇降機を呼び寄せたり、別の階へ送り出したりすることが簡単に操作できます。
安全な昇降をサポートするシートベルトが標準装備されています。邪魔にならないように巻き取る機能がついています。
進行方向の障害物を検知するセンサーを搭載しており、走行中に障害物に当たると直ちに自動停止します。
万が一のトラブルや緊急時に備え、昇降機の動作を即座に停止できる「非常停止ボタン」が搭載されています。
昇降機を使用していない時はコンパクトに折りたたんで収納することができ、階段の通行スペースを広く確保できます。
| 積載荷重 | 1名 90kg (大臣認定登録) |
|---|---|
| 操作 | ジョイスティック操作(有線式) 押し続け操作 |
| ドライブシステム | 充電式バッテリー (24V) 駆動、 ラック&ピニオン方式 |
| 対応傾斜角度 | 28~53度 |
| レール | アルミニウム |
| 速度 | 最大7.2以下/分 |
| 標準仕様 | 赤外線リモコン2個、 障害物センサー 安全ベルト、 折畳式チェア及びフットレスト上階での手動旋回機能 |
| 積載荷重 | 1名 90kg (大臣認定登録) |
|---|---|
| 操作 | ジョイスティック操作(有線式) 押し続け操作 |
| ドライブシステム | 充電式バッテリー (24V) 駆動、 ラック&ピニオン方式 |
| 対応傾斜角度 | 28~53度 |
| レール | アルミニウム |
| 速度 | 最大7.2以下/分 |
| 標準仕様 | 赤外線リモコン2個、 障害物センサー 安全ベルト、 折畳式チェア及びフットレスト |
| 追加機能 | 上階での自動旋回機能 (自動型のみ) 自動開閉フットレスト (自動型のみ) キーロック機能 (自動型のみ) |